Shepard

      

Floor Plans

Additional Photos

Floor Plans

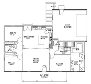
Type39
Finished Sq. Ft.1663
Total Sq. Ft.3558
Bedrooms3
Bathrooms2
Garage2
Width60
Depth52

Shepard

This lovely master on main looks elegant on any lot! Features quiet master suite and side-loading garage.

Alternate Versions