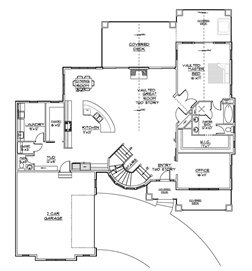
Floor Plans
| Type | 39 | 
| Finished Sq. Ft. | 4098 | 
| Total Sq. Ft. | 6331 | 
| Bedrooms | 4 | 
| Bathrooms | 3.5 | 
| Garage | 5 | 
| Width | 67 | 
| Depth | 66 | 
Worcester
This terrific master on main features a grand staircase, home office, and art nook. Main Floor 2,250 sq ft, Second Floor 1,848 sq ft.





 
				