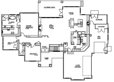
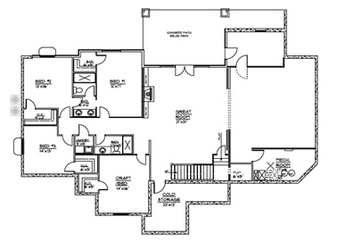
Floor Plans
| Type | 17 |
| Finished Sq. Ft. | 2944 |
| Total Sq. Ft. | 6089 |
| Bedrooms | 5 |
| Bathrooms | 4.5 |
| Garage | 3 |
| Width | 98 |
| Depth | 68 |
Pyper 2,944
This sophisticated rambler is a terrific deal! Features full basement apartment, den, craft room, holiday garage storage, wood stove, and a fine entry.




