Hear

      

Floor Plans

Additional Photos

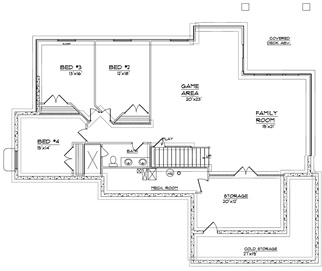
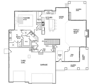
Floor Plans

Type17
Finished Sq. Ft.2207
Total Sq. Ft.4640
Bedrooms4
Bathrooms2.5
Garage3
Width66
Depth64

Hear

This alert rambler features a master suite and entry with tray ceilings. Master suite has his-and-hers showers and closets!

Alternate Versions