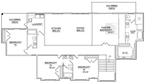
Floor Plans
| Type | 40 |
| Finished Sq. Ft. | 5309 |
| Total Sq. Ft. | 9135 |
| Bedrooms | 11 |
| Bathrooms | 8.5 |
| Garage | 3 |
| Width | 112 |
| Depth | 62 |
Petal
With an outdoor kitchen, sun room and prayer room, this fantastic two-story accomodates any needs! Main Floor 3,671 sq ft, Second Floor 1,637 sq ft.




