801.294.6400
801.294.6400
Get Started
Home
About Us
Gallery
Services
Plan Catalog
Contact
Click to Close
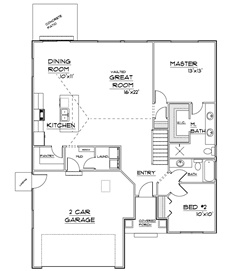
Akua
Floor Plans
Additional Photos
Floor Plans
Type
17
Finished Sq. Ft.
1331
Total Sq. Ft.
2724
Bedrooms
2
Bathrooms
2
Garage
2
Width
40
Depth
49
Akua
This succinct rambler is perfect for narrow/small lots! Luxury in a small package.
Alternate Versions