Una

      

Floor Plans

Additional Photos

Floor Plans

Type39
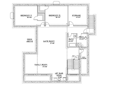
Finished Sq. Ft.3435
Total Sq. Ft.5213
Bedrooms6
Bathrooms4.5
Garage3
Width90
Depth55

Una

This upscale urban master on main is visually at home in any neighborhood. Main Level 2,196 sq ft Second floor 1,239 sq ft

Alternate Versions